Woonoppervlakte
Circa 104 m²
Perceeloppervlakte
Circa 197 m²
Bouwjaar
Gebouwd in 1989
Aantal kamers
7 kamers (2 slaapkamers)

Praaglaan 92

6229 HP, Maastricht (Limburg)

MAASTRICHT (Randwyck) - Comfortabele 2-onder-1 kapwoning met geschakelde carport en garage v.v. bergvliering, serre, 2 slaapkamers (3 mogelijk) en grote zolder t.b.v. 4e slaapkamer en leuke tuin, uitstekend gelegen aan de zuidoostkant van het centrum van Maastricht in de prettige woonwijk Randwyck aan de Praaglaan 92, nabij het MUMC+, het MECC en winkelcentrum De Beente.

ALGEMEEN
De woning is gelegen in een groene en kindvriendelijke buurt met drie basisscholen, speeltuinen en winkels op loopafstand.
In het algemeen kan worden gesteld dat de woning keurig verzorgd en onderhouden is, in goede staat is, de afwerking is enigszins gedateerd.
De L-vormige woonkamer is gelegen aan de voorzijde en loopt door naar de eetkamer met open keuken van waaruit de verwarmde serre is te bereiken, welke toegang biedt naar de tuin op het noorden en de naastgelegen garage met bergvliering.
Op de eerste verdieping zijn 2 slaapkamers (voorheen 3), eenvoudige badkamer met wastafelmeubel, ligbad en witgoedaansluiting, op de overloop is een separate toiletruimte.
Een vaste trap (met deur afsluitbaar) brengt u naar de ruime zolder met een klein dakvenster waar een extra slaapkamer te realiseren is. Hier is ook de HR CV-combiketel (huur) uit 2019 geplaatst.
De garage ligt links naast de woning en is voorzien van een elektrische sectionaalpoort en carport aan de straatzijde, deur naar de serre en heeft over de eerste helft van de garage een bergruimte in de nok. Op de eigen oprit voor de garage is de carport samen met de buren gerealiseerd.
De ca. 8,5 meter diepe en ca. 8 meter brede betegelde onderhoudsvriendelijke achtertuin met serre, terras, en borders ligt op het noorden en heeft geen achterom, is vanaf de straat via de garage en serre te bereiken.

INDELING
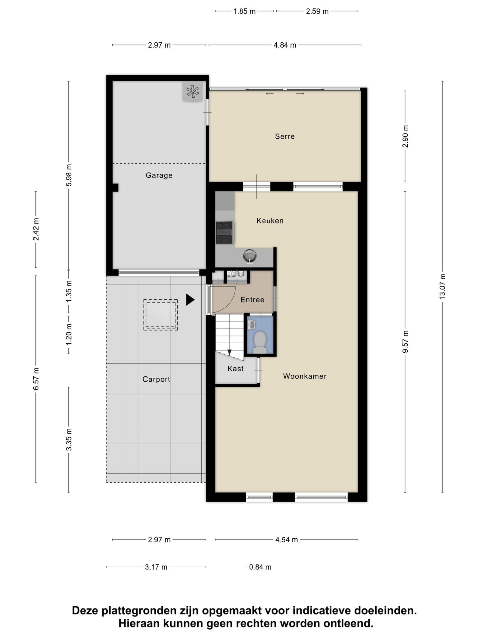
Begane grond:
- Entree/hal met toiletruimte, meterkast en trapopgang naar eerste verdieping en kruipluik naar kruipruimte onder de woning;
- Toiletruimte is volledig betegeld en voorzien van een duoblok, fonteintje en mechanische afzuiging;
- Heldere L-vormige woonkamer aan voorzijde van de woning (ca. 33 m²), welke is voorzien van een doorlopende tegelvloer en heeft een muurkast onder de trap; De balkjes aan het plafond zijn ter decoratie en hebben geen constructieve functie.
- Open keuken (ca. 5,5 m²) met L-vormige keukenopstelling en loopdeur naar serre; Keukeninrichting d.d. 1989 v.v. van onder- en bovenkasten, afzuigkap, kunststof werkblad met RVS spoelbak, 4-pits gaskookplaat, oven en koelkast;
- Ruime serre (ca. 14 m²) voorzien van radiatorverwarming, alu. schuifdeuren naar de tuin en een deur naar garage;
- De gehele benedenverdieping (m.u.v. buitenzijde serre) is voorzien van (elektrische) rolluiken, geïsoleerde betonvloer en kunststof kozijnen v.v. isolatieglas d.d. 1997.

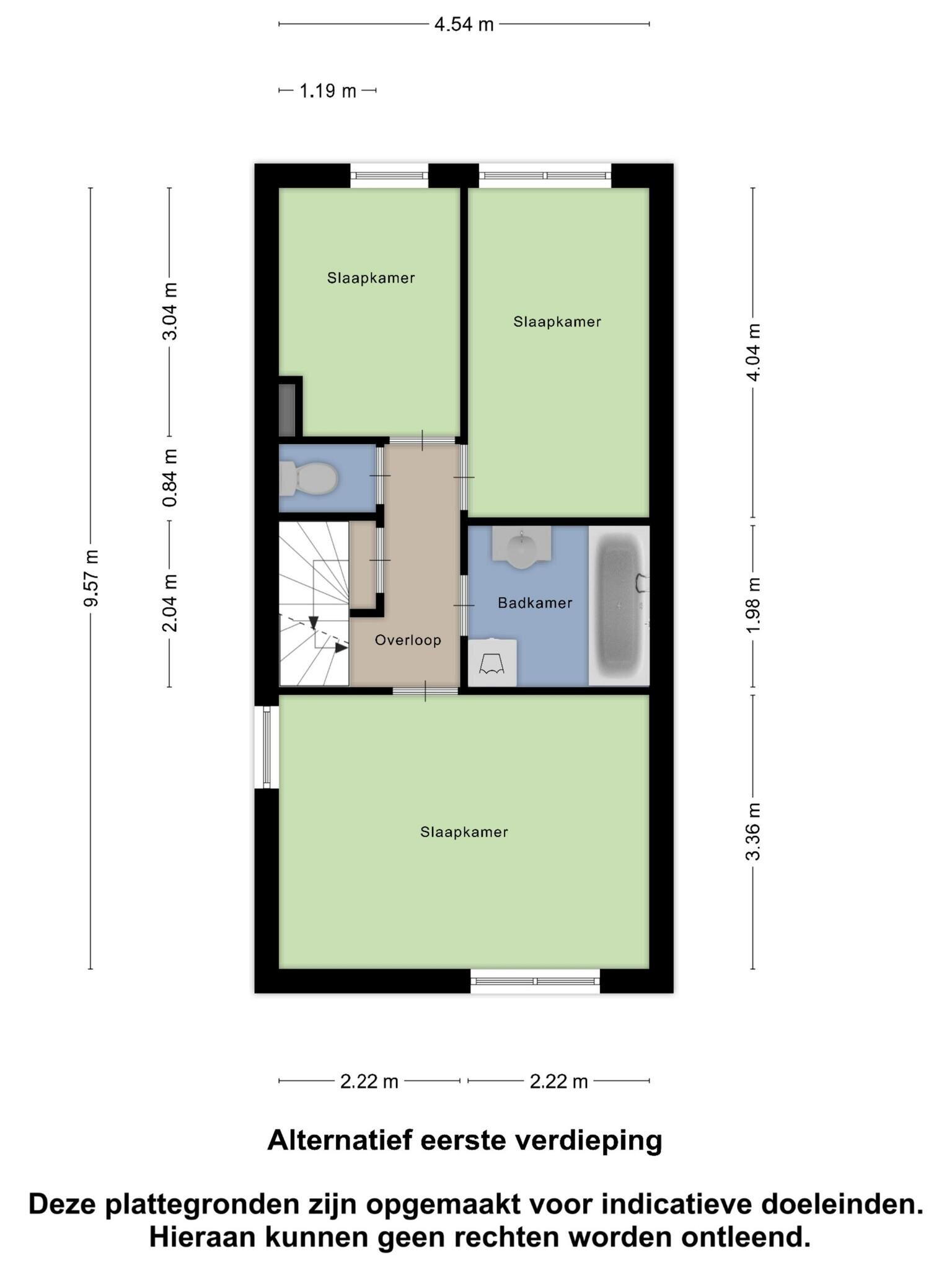
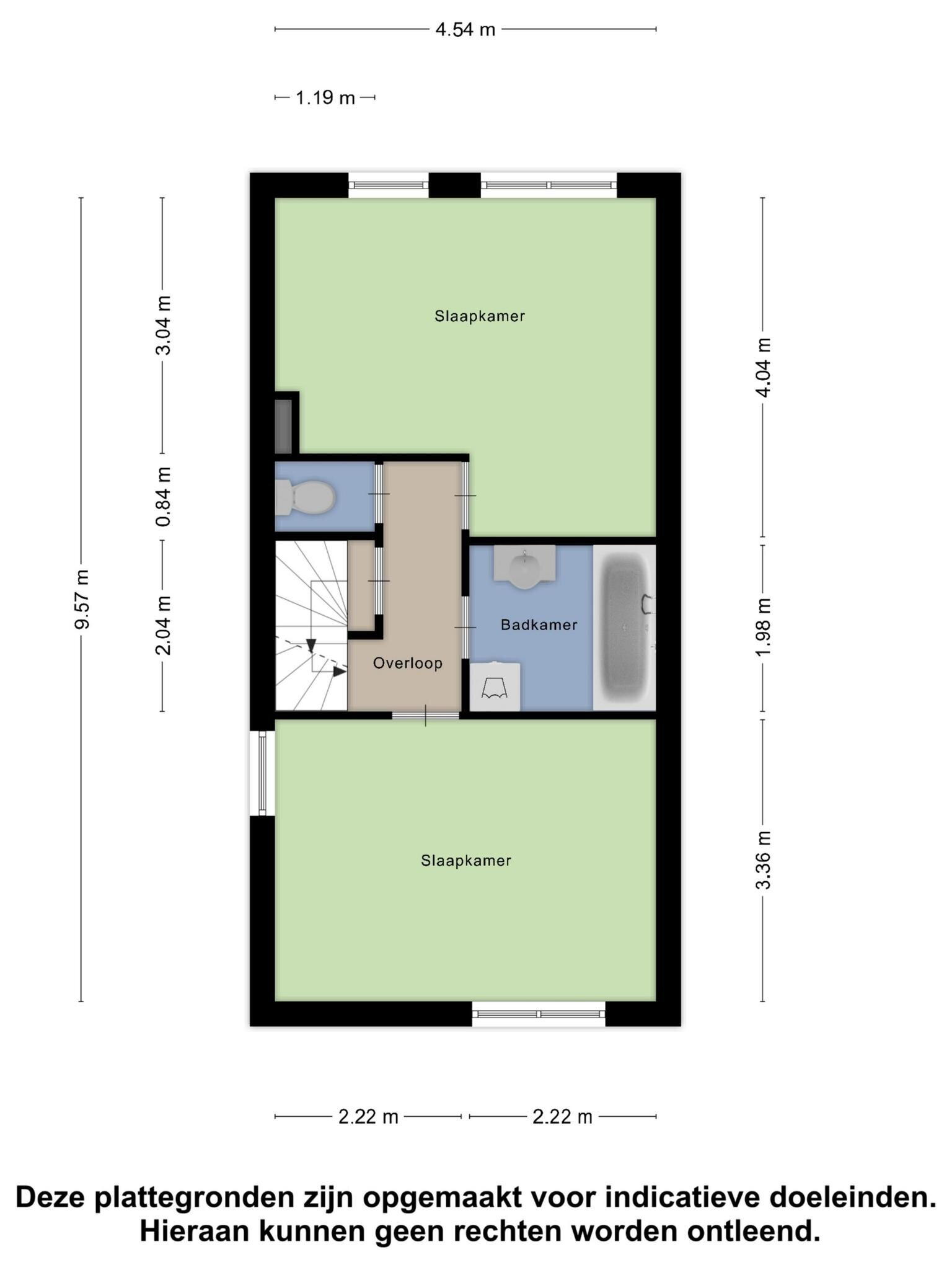
Eerste verdieping:
Geheel voorzien van een betonvloer bedekt met tapijt, er zijn rolluiken op alle slaapkamers en kunststof kozijnen v.v. isolatieglas d.d. 1997;
- Overloop met toegang tot 2 slaapkamers, badkamer, toilet en vaste trap naar tweede verdieping;
- Slaapkamer 1, aan voorzijde, afmeting ca. 15 m²;
- Slaapkamer 2, aan achterzijde, afmeting ca. 16 m², was voorheen 2 slaapkamers en is eenvoudig in die staat weer terug te brengen;
- Badkamer d.d. 1989, voorzien van ligbad met douche, wastafelmeubel met kastjes, wasmachine-aansluiting, mechanische afzuiging, afmeting ca. 4,5 m²;
- Tweede toiletruimte d.d. 1989 op de overloop gelegen, met duoblok en inbouwreservoir.

Tweede verdieping:
- Middels vaste trap bereikbaar;
- De gehele verdieping is voorzien van een betonvloer bedekt met vloerbedekking;
- Geïsoleerd dak (1989), voorzien van 4-pans dakraam;
- Zolderkamer kan gebruikt worden als 3e slaapkamer, afmeting ca. 23 m²;
- Het plaatsen van een dakkapel aan de achterzijde is mogelijk;
- Cv-installatie (2019, huur) en mechanische ventilatie-unit en drogeraansluiting aanwezig.

BUITEN
- Leuk aangelegde onderhoudsvriendelijke voor- en achtertuin;
- Eigen oprit met carport (ca. 20 m²) naast de woning met capaciteit voor 2 (kleine) auto's;
- De achtertuin is rustig en overzichtelijk, grotendeels betegeld, terras en borders met beplanting, geen achterom;
- De garage (ca. 18 m²) is naast de woning gelegen en voorzien van een elektrische sectionaalpoort aan straatzijde en deur naar de serre en heeft een bergruimte in de nok.

OMGEVING
Deze kindvriendelijke wijk Randwyck ligt op 10 fietsminuten van het Vrijthof in Maastricht en op loopafstand tussen het MECC, het Academisch Ziekenhuis Maastricht / MUMC+ en het Provinciehuis Limburg.
Er zijn in de nabijheid in de woonomgeving 3 verschillende basisscholen met bijbehorende kinderopvang, winkels voor uw dagelijkse boodschappen en groenvoorzieningen zoals het natuurgebied De Kleine Weerd langs de Maas.

BIJZONDERHEDEN
- Bouwjaar 1989;
- Woonoppervlakte ca. 104 m², perceel 197 m², inhoud ca. 511 m³;
- Twee slaapkamers op de eerste verdieping;
- 3e of 4e slaapkamer mogelijk op de tweede verdieping;
- Woning rondom voorzien van rolluiken;
- 2 parkeerplaatsen op oprit, carport ca. 20 m²;
- Geschakelde garage van ca. 18 m²;
- Combi-parkeren aan de straat, parkeervergunning mogelijk;
- Comfortabele eengezinswoning met omsloten tuin;
- Rustig gelegen nabij winkels, scholen en uitvalswegen.

KENGETALLEN
- Gebruiksoppervlakte wonen ca. 104 m²;
- Overige inpandige ruimte ca. 41 m²;
- Gebouw gebonden buitenruime ca. 20 m²;
- Inhoud ca. 511 m³;
- Bouwjaar ca. 1989;
- Perceelgrootte ca. 197 m².

ENERGIELABEL
De woning beschikt over een definitief energielabel A, welke geldig is tot 19-02-2035.

OPLEVERING
In de huidige staat, enkele roerende zaken blijven achter, lijst bij makelaar opvraagbaar.

AANVAARDING
In onderling overleg.

KADASTRAAL
Gemeente Maastricht, sectie M, nummer 1353.

BEZICHTIGING
Uitsluitend op afspraak via makelaarskantoor TIM Vastgoed, tel. 043-3506900.

Voetnoot:
ONDERHOUD
De vermelde staat van onderhoud en beoordeling van de bouwkundige toestand is op basis van visuele waarnemingen door de makelaar.
Verkopers voldoen aan hun informatieplicht door het verstrekken van een door hen ingevulde vragenlijst, welke is op te vragen bij de makelaar.

AANSPRAKELIJKHEID
Hoewel gestreefd is naar een zo zorgvuldig mogelijke weergave van de beschikbare gegevens, moet er van uitgegaan worden dat deze brochure slechts indicatief is. De vermelde gegevens (bedragen, jaartallen, omschrijvingen etc.) zijn onder andere verkregen door mondelinge overdracht. Wij attenderen de kopers er op dat, ondanks het verstrekken van deze verkoopinformatie en de vragenlijst, de koper haar onderzoeksplicht heeft.

KOOPAKTE
De koopovereenkomst wordt opgesteld volgens model VBO/NVM. Verkoper stelt uitdrukkelijk dat een koop alleen tot stand komt als over alle hoofdzaken (zoals koopsom) en over de details (zoals oplevering) overeenstemming is bereikt, kopers kunnen (laten) aantonen dat zij onderzoek hebben verricht naar de financiële haalbaarheid van hun aankoop en de overeenstemming schriftelijk is vastgelegd in een koopovereenkomst die door koper en verkoper ondertekend is.

ONTBINDING
De termijn die wordt opgenomen voor eventuele (overeengekomen) ontbindende voorwaarden (b.v. financiering) is in de regel 6 weken na het ondertekenen van de koopovereenkomst.

ZEKERHEIDSTELLING
De waarborgsom/bankgarantie is 10% van de koopsom. De koper dient deze binnen 2 weken na einde voorbehoud(-en) bij de desbetreffende notaris te deponeren.

Wij vertrouwen erop u hiermee correct te hebben geïnformeerd en hopen u enthousiast te hebben gemaakt voor deze woning.
Kom kijken en overtuig u zelf, want pas tijdens een bezichtiging ervaart u de woning en kunt u voelen of de woning bij u past.

Hartelijk dank voor uw belangstelling en graag tot ziens.
TIM Vastgoed - Thuis In Makelaardij
Tel. 043-350 6900

Plattegronden

Overdracht

Vraagprijs
€ 425.000 k.k.
Status
Verkocht
Aanvaarding
In overleg

Bouw

Object type
Eengezinswoning, geschakelde 2 onder 1 kapwoning
Soort bouw
Bestaande bouw
Bouwjaar
1989
Soort dak
Zadeldak

Oppervlakte en inhoud

Woonoppervlakte
104 m²
Perceeloppervlakte
197 m²
Inhoud
511 m³
Overige inpandige ruimte
41 m²
Gebouwgeb. buitenruimte
20 m²

Indeling

Aantal kamers
7 kamers (2 slaapkamers)
Aantal badkamers
1 badkamer
Badkamervoorzieningen
Ligbad, wastafel, wasmachineaansluiting
Aantal woonlagen
3 woonlagen
Voorzieningen
Mechanische ventilatie, rolluiken, tv-kabel

Energie

Energielabel
A
Energielabel registratie
19-02-2025
Isolatie
Dakisolatie, muurisolatie, vloerisolatie, dubbel glas
Verwarming
Cv-ketel
Warm water
Cv-ketel
Cv ketel
Hr gas gestookt uit 2019 (huur)

Buitenruimte

Ligging
Aan rustige weg, in woonwijk
Tuin
Achtertuin, voortuin
Afmetingen achtertuin
52 m² (9 meter diep en 5.8 meter breed)
ligging tuin
Gelegen op het noorden

Garage

Soort garage
Aangebouwd steen
Capaciteit
1 auto
Voorzieningen
Elektrische deur
Isolatie
Dakisolatie, muurisolatie

Parkeergelegenheid

Soort parkeergelegenheid
Openbaar parkeren, parkeervergunningen, op eigen terrein

Energieverbruik in Maastricht

Energielabel deze woning

Energielabel A

Publicatie energielabel: 19-02-2025

Stroomverbruik per jaar

3240 kWh

(Gemiddelde twee onder een kap in Maastricht)

Gasverbruik per jaar

1610 m³

(Gemiddelde twee onder een kap in Maastricht)

* Cijfers zijn afkomstig van het CBS en bedoeld als indicatie en kunnen verschillen voor deze woning

Indicatie hypotheeklasten

Eigen inleg:
Spaargeld / overwaarde

Rente:
Laagste 10-jaars rente

Laagste 10-jaars rente

2,71% - Centraal Beheer Groen... - NHG


3% - Centraal Beheer Groen Lee... - 80%

Laagste 20-jaars rente

3,19% - Centraal Beheer Groen... - NHG


3,31% - Centraal Beheer Groen... - 80%

Laagste 30-jaars rente

3,34% - Centraal Beheer Groen... - NHG


3,47% - Centraal Beheer Groen... - 80%


Hypotheek:

Bruto maandlasten: € 0 p/m

Netto maandlasten: € 0 p/m

Hoe berekenen we dit?

Het rentepercentage is gebaseerd op de laagste 10-jaars vaste rente voor één hypotheekdeel. De vermelde rente (3% zonder NHG) is gecontroleerd op 08-05-2025. Deze berekening is gebaseerd op een annuïteitenhypotheek die volledig wordt afgelost, waarbij de maandlasten gedurende de gehele looptijd gelijk blijven. De werkelijke rente en netto maandlasten kunnen variëren, afhankelijk van uw persoonlijke situatie en de hypotheekverstrekker. Raadpleeg een financieel adviseur voor een nauwkeurige berekening en advies. Aan deze berekening kunnen geen rechten worden ontleend; het dient enkel als indicatie.

Documentatie

Zonnegrenzen bekijken

Op de kaart

Inwoners in Maastricht

Cijfers voor postcodegebied 6229

Totaal aantal inwoners
6670 inwoners
Mannen
48%
Vrouwen
52%

Inwoners in Maastricht

Cijfers voor postcodegebied 6229

tot 15 jaar
10%
15 tot 25 jaar
14%
25 tot 35 jaar
24%
45 tot 65 jaar
31%
65 en ouder
20%

Huishoudens in Maastricht

Cijfers voor postcodegebied 6229

Eenpersoons zonder kinderen
49%
Meerpersoons zonder kinderen
28%
Huishoudens zonder kinderen
77%

Huishoudens in Maastricht

Cijfers voor postcodegebied 6229

Huishoudens met één kind
7%
Huishoudens met meerdere kinderen
17%
Huishoudens met kinderen
24%

Woningen in Maastricht

Cijfers voor postcodegebied 6229

Woningen voor 1945
8%
Woningen tussen 1945 en 1965
11%
Woningen tussen 1965 en 1975
5%
Woningen tussen 1975 en 1985
10%
Woningen tussen 1985 en 1995
55%

Woningen in Maastricht

Cijfers voor postcodegebied 6229

Woningen tussen 1995 en 2005
7%
Woningen tussen 2005 en 2015
4%
Woningen na 2015
1%
Huurwoningen
60%
Koopwoningen
40%

Overige in Maastricht

Cijfers voor postcodegebied 6229

Gemiddelde WOZ waarde
€ 225.000,-
Personen onder de 65 met uitkering
12%

Overige in Maastricht

Cijfers voor postcodegebied 6229

Adressen per km²
1490
Stedelijkheid (schaal 1 op 5)
60%
Postcode kaart 6229 Gemeente kaart maastricht

Korte feiten over Maastricht

Maastricht is een stad en gemeente in het zuiden van Nederland. Het is de hoofdstad van de provincie Limburg en telt 120.837 inwoners (31 januari 2022, bron: CBS). Het is hiermee de grootste gemeente van de provincie Limburg.

Indien u vragen heeft of u wilt een bezichtiging inplannen, dan kunt u gebruik maken van het formulier hiernaast. Er zal daarna op korte termijn contact met u worden opgenomen.

Parkweg 28

6212 XN, Maastricht

043 - 350 6900 info@timvastgoed.nl www.timvastgoed.nl

Over TIM Vastgoed

TIM Vastgoed staat voor 'Thuis In Makelaardij'.

Kantooreigenaar en makelaar-taxateur Tim Schaap heeft sinds 2003 samen met zijn team een uitstekende reputatie opgebouwd in de makelaardij in Zuid-Limburg.

Dankzij hun uitgebreide expertise en op maat gemaakte marketingstrategieën weet het team van TIM Vastgoed hun Zuid-Limburgse aanbod uitstekend te presenteren, wat leidt tot succesvolle resultaten.

Het betrokken en persoonlijke contact met de teamleden die de normen en waarden van het familiebedrijf hanteren, is opvallend en onderscheidend in deze branche.

Vastgoed kopen of verkopen behoort tot de grootste financiële en emotionele investeringen in iemands leven. Het is toekomstbepalend en kan een leven een nieuwe richting geven. Bij TIM Vastgoed zijn ze zich hiervan bewust en behandelen ze dit zorgvuldig. Klanten beschrijven TIM Vastgoed als een ondernemend kantoor waar de medewerkers écht meedenken.

Door te kiezen voor TIM Vastgoed als makelaarskantoor, kies je niet alleen voor een professionele makelaar met bouwkundige expertise, maar ook voor een mensgerichte benadering.

"Onze missie is ervoor zorgen dat iedereen in zijn of haar droomhuis of bedrijfspand kan wonen of werken. We doen alles binnen onze mogelijkheden om die dromen te verwezenlijken," zegt Tim Schaap, mede-eigenaar en gecertificeerde VBO-makelaar/registertaxateur bij TIM Vastgoed.

Wil je nader kennismaken? Klik hieronder voor een korte video-introductie:

Video-introductie TIM Vastgoed
Over TIM Vastgoed
Reviews TIM Vastgoed

Praaglaan 92, Maastricht

€ 425.000 k.k. - Verkocht

Helaas, deze woning is verkocht!

Net te laat, deze woning is al verkocht. Laat een zoekopdracht bij ons achter zodat wij u direct kunnen helpen wanneer er nieuw aanbod beschikbaar komt.